An upscale hotel in the historic Rosenbush Building in downtown Demopolis is a step closer to reality.
The Demopolis Historical Commission recently approved drawings and other documents, clearing the way for developers to receive tax credits for the renovation of the 19th century building on North Walnut Avenue.
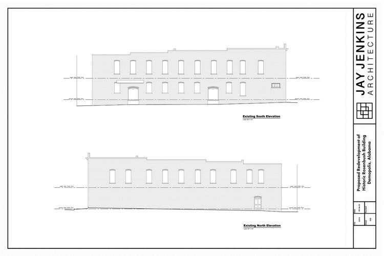
Plans are to turn the building, once a furniture store and now a museum, into a 22-room, high-end hotel. The renovation will cost between $4 million and $6 million, according to Collins. The project is scheduled to be completed no later than the end of 2027.
The Rosenbush Building opened as a furniture store in 1895 and was added to the National Register of Historic Places in 1979. It was restored in January 1979 and was donated to the city of Demopolis.
The Marengo County History and Archive Museum, which occupies the Rosenbush Building, will be moved to the nearby Old School.Â
Brad Fisher is Associate Publisher of the Black Belt News Network and Selma Sun. He can be reached at bfisher@kingfisher-media.com.
Keep it Clean. Please avoid obscene, vulgar, lewd,
racist or sexually-oriented language. PLEASE TURN OFF YOUR CAPS LOCK. Don't Threaten. Threats of harming another
person will not be tolerated. Be Truthful. Don't knowingly lie about anyone
or anything. Be Nice. No racism, sexism or any sort of -ism
that is degrading to another person. Be Proactive. Use the 'Report' link on
each comment to let us know of abusive posts. Share with Us. We'd love to hear eyewitness
accounts, the history behind an article.
(0) comments
Welcome to the discussion.
Log In
Keep it Clean. Please avoid obscene, vulgar, lewd, racist or sexually-oriented language.
PLEASE TURN OFF YOUR CAPS LOCK.
Don't Threaten. Threats of harming another person will not be tolerated.
Be Truthful. Don't knowingly lie about anyone or anything.
Be Nice. No racism, sexism or any sort of -ism that is degrading to another person.
Be Proactive. Use the 'Report' link on each comment to let us know of abusive posts.
Share with Us. We'd love to hear eyewitness accounts, the history behind an article.